
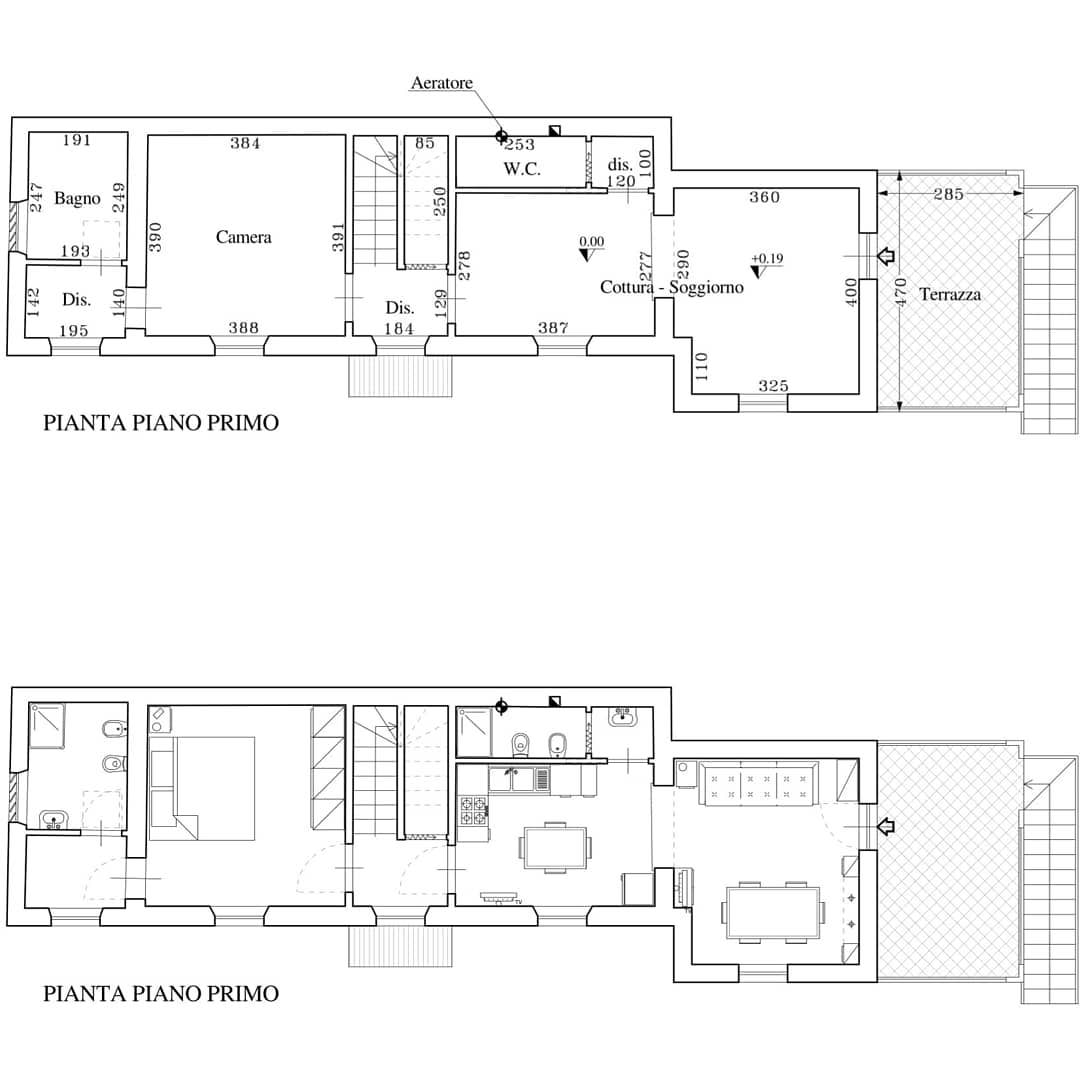
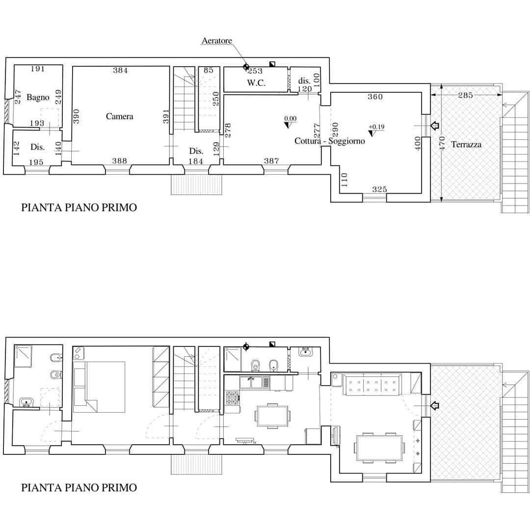
Ristrutturazione, frazionamento e ampliamento di fabbricato abitativo di vecchissima costruzione
Particolare attenzione dedicata al consolidamento strutturale ai fini dell’adeguamento in materia sismica.
Il tutto completato da un’attenta progettazione anche per ciò che riguarda l’arredamento degli interni.
Di seguito alcuni scatti riguardanti il progetto.
- Consolidamento strutturale adeguamento in materia sismica 30 03_01
- Consolidamento strutturale adeguamento in materia sismica 30 03_02
- Consolidamento strutturale adeguamento in materia sismica 30 03_03
- Consolidamento strutturale adeguamento in materia sismica 30 03_04
- Consolidaamento strutturale adeguamento in materia sismica 30 03_05
Per ogni curiosità non esitate a contattarci tramite l’apposito modulo o tramite i nostri social.
https://www.facebook.com/studiotecnicoghiarapierini/




